
扫二维码查看手机官网
一、概述
流量控制阀用做控制库底卸出的物料量,通常与回转阀一起使用,物料先通过一段小斜槽,使物料流态化,然后再进入流量阀,这样可避免在流量控制部分形成料柱,流量控制阀由电动执行番调节开度,可实现远距离控制阀门的开度,以满足系统计量的要求,回转阀主要在物料流量控制系统中作开关用,通常与电动流量控制阀串联配套使用,适用于建材、冶金、化工、粮食、玻璃等行业。
二、结果特点
流量控制阀和回转阀设计科学合理、结构紧凑、阀芯开有u型槽口,调节槽口开度可进行流量控制,指示盘可指示阀芯开度,阀芯与电动执行机构的联轴圈增设安全销,阀芯和执行机构不受损坏,在阔的进口设有衬垫,将阀体与阀芯隔开,衬垫与阀芯之间径向间隙可调整,以阀芯运转的灵活性,流量控制阀配用DKJ执行器,回转阀配用10-5A气动推杆。
三、性能参数

四、工作原理
流量控制阀主要有机座、阀体、密封垫、衬套、阀芯、轴承、透气层、充气糟及传动装置组成,风机给予低压小客量空气,经通道口由充气槽充气,气体透过透气层,均匀向上喷吹,鼓动物料向上位移,物料自重下落时,由设备安装斜度而产生位移,不断重复致使物科向前位移。执行机构带动联轴器,阀芯动作,以调节物料流量,回转阀只作开关作用,通过电磁阀控制气动推杆气源来指令推杆动作,完成切换动作。
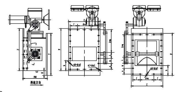
FLD-N外形图

FKQ-N外形图

五、FlD/FKQ-N外形连接尺寸

六、使用说明
安装前请检查内腔有无杂物附着,否则会堵塞U型阀芯或损坏阀件,查看沸腾板受潮没有,如沸腾板受潮请更换后再进行安装,否则影响使用效果,检查各传动部分是否灵活可靠,装时传动部分不允许做吊装用,并严禁损伤,两法兰连接中间需加密封垫片,然后均匀拧紧联接螺栓。
公 司:南通紫瑞环保科技有限公司
手 机:13773759188
邮 箱:13773759188@163.com
地 址:江苏省南通市海安高新区谢庄村10组