
扫二维码查看手机官网
一、概述
库底卸料装置由库底螺旋阀、库底分料箱、气动开关阀、电动流量控制阀及卸料溜子组成(见图一),用于水泥生料粉或水泥库底卸料,库底卸料装置能自动调节卸料流量且均匀,其结构合理,操作维护简单方便,可设三个下料口,用户也可选用库侧卸料装置(见图二) 。
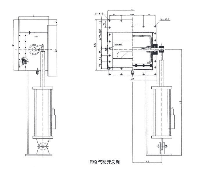
本厂卸料装置的气动开关阀(见图三)、电动流量调节阀(见图三)是采用德国技术制造,阀芯、壳体采用16Mn钢制作,阀芯表面镀铬,厚度10um,以增加其耐磨性能,阀芯的密封采用整体羊毛毡密封,密封盒的松紧可在外部调节,更换时可在无须拆卸阀体的情况下从双侧抽出,阀芯开口、壳体部件下料均采用激光切割、机床加工的方式制作。
二、进、出口法兰及外形尺寸

三、示意图




四、技术参数表

公 司:南通紫瑞环保科技有限公司
手 机:13773759188
邮 箱:13773759188@163.com
地 址:江苏省南通市海安高新区谢庄村10组