服务热线 全国服务热线:

13773759188

  • 连续式均化库
连续式均化库

连续式均化库


    扫二维码查看手机官网


    产品品牌:南通紫瑞

    联系电话:13773759188


一、概述

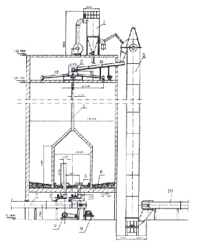
连续式均化库是生料从库顶连续进料,经过充气搅拌的同时连续出料,该库在中心位置设一个圆柱形混合室,以降低库内卸料压力,消除漏斗流,在混合室周围6-12卸料孔,在混合室与库壁之间有6-12个充气区,卸料时轮流向中心室进料,进入混合室的物料因混合室连续充气而进一步混合,使合格的生料从高位滋流管卸出,多余气体则由排气管排至外环区,并抽至收尘酱净化,其均化值为5-9,电耗0.1-0.2kwh/t。

a4.jpg

ф12米连续式均化库设备表

a4-1.jpg

上一条:没有了! 下一条:没有了!

产品展示

联系我们

公 司:南通紫瑞环保科技有限公司

手 机:13773759188

邮 箱:13773759188@163.com

地 址:江苏省南通市海安高新区谢庄村10组

Copyright © 2023-2030南通紫瑞环保科技有限公司 All rights reserved.

中华人民共和国非经营性ICP编号:苏ICP备2023012214号-1

苏公网安备32062102000707

加入成功

×

您已成功将该商品添加到购物车!

购物车当前共有0种商品合计:0.00